Gewerbeimmobilie - Werkstatt/Lager mit Büro/Wohnung in Flaurling

Florina badge

Alle Daten im Überblick

Mietpreis: auf Anfrage
Sign Icon Mietobjekt
Anfahrt Icon
6403 Flaurling

beschreibung

Im Gewerbegebiet von Flaurling, zentral gelegen und von der Bundesstraße aus gut sichtbar, wird ab Jänner 2026 eine Werkstatt bzw. Lagerhallen mit Freiflächen und einem Büro bzw. einer Wohnung verpachtet.

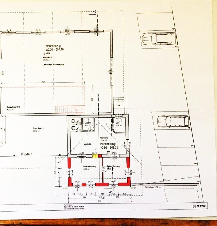
Die Halle mit einer Fläche von ca. 178,79 m² und einer partiellen Raumhöhe von ca. 5,00 m verfügt noch über ein innenliegendes Hoch-Parterrelager mit einer Fläche von ca. 40,09 m².

Im selben Gebäude, mit separaten Zugang, befindet sich ein Büro mit ca. 57,59 m², das aber auch als Wohnung genutzt werden kann.

Die Lager- und Freiflächen können zusammen mit dem Büro/der Wohnung gemietet werden, aber auch als getrennte Einheiten. Das Büro bzw. die Wohnung gliedert sich in einen zentralen Wohnraum mit ca. 30 m² und eine angrenzende Dusche mit separatem WC, plus 2 weiteren Räumen in der Größe von ca. 11,89 m² und ca. 15,70 m².

Der Vorplatz bzw. die Freiflächen betragen ca. 178,79 m². Autoabstellplätze sind zahlreich vorhanden.

Der Mietpreis variiert je nach Flächennutzung von 1.400,- bis 2.500,- Euro netto!

Hinweis gemäß Energieausweisvorlagegesetz: Ein Energieausweis wurde vom Eigentümer bzw. Verkäufer, nach unserer Aufklärung über die generell geltende Vorlagepflicht, sowie Aufforderung zu seiner Erstellung noch nicht vorgelegt. Daher gilt zumindest eine dem Alter und der Art des Gebäudes entsprechende Gesamtenergieeffizienz als vereinbart. Wir übernehmen keinerlei Gewähr oder Haftung für die tatsächliche Energieeffizienz der angebotenen Immobilie.

Wir weisen darauf hin, dass zwischen dem Vermittler und dem zu vermittelnden Dritten ein familiäres oder wirtschaftliches Naheverhältnis besteht.


Infrastruktur / Entfernungen

Gesundheit
Arzt <4.500m
Apotheke <4.500m
Krankenhaus <8.000m

Kinder & Schulen
Schule <1.000m
Kindergarten <1.000m

Nahversorgung
Supermarkt <1.000m
Bäckerei <1.500m
Einkaufszentrum <5.500m

Sonstige
Bank <2.000m
Geldautomat <2.000m
Post <1.500m
Polizei <6.000m

Verkehr
Bus <500m
Bahnhof <500m
Autobahnanschluss <1.500m

Angaben Entfernung Luftlinie / Quelle: OpenStreetMap