200 m² Wohn-Traum auf 2 Ebenen mit Terrassen, Gärten und Stadtblick

Die äußerst großzügige 2-stöckige Wohnung befindet sich in herrlicher Aussichtslage in Aldrans, in einem architektonisch sehr gelungen Wohnhaus. In den Ortskern, zum Lebensmittelgeschäft, zum Arzt, zur Bushaltestelle, der Schule und Kindergarten sind es nur wenige Meter zu Fuß. Die Anbindung an Innsbruck könnte besser nicht sein!
Florina badge

Alle Daten im Überblick

Kaufpreis: 1.490.000 €
Nebenkosten:
997,62 €
Einmalkosten
3% des Kaufpreises zzgl. 20% USt.
Baujahr
2015
Verfügbar
nach Vereinbarung
Sign Icon Kaufobjekt
Haus Icon 8 Zimmer
Anfahrt Icon
6071 Aldrans
groesse Icon 199.82 m2

beschreibung

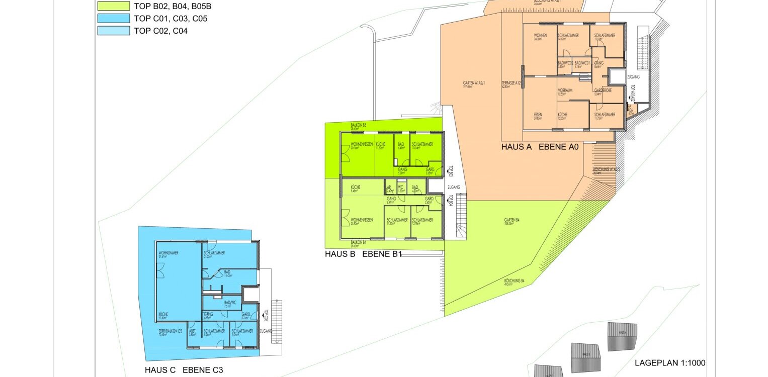
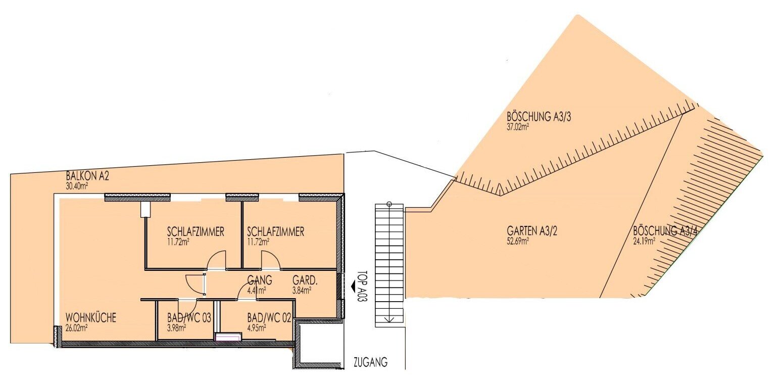
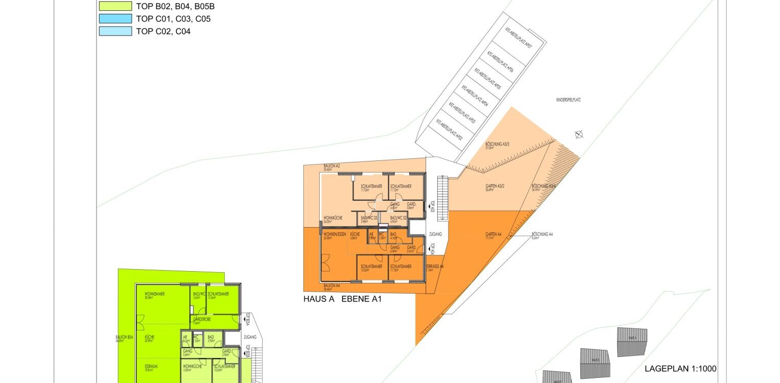
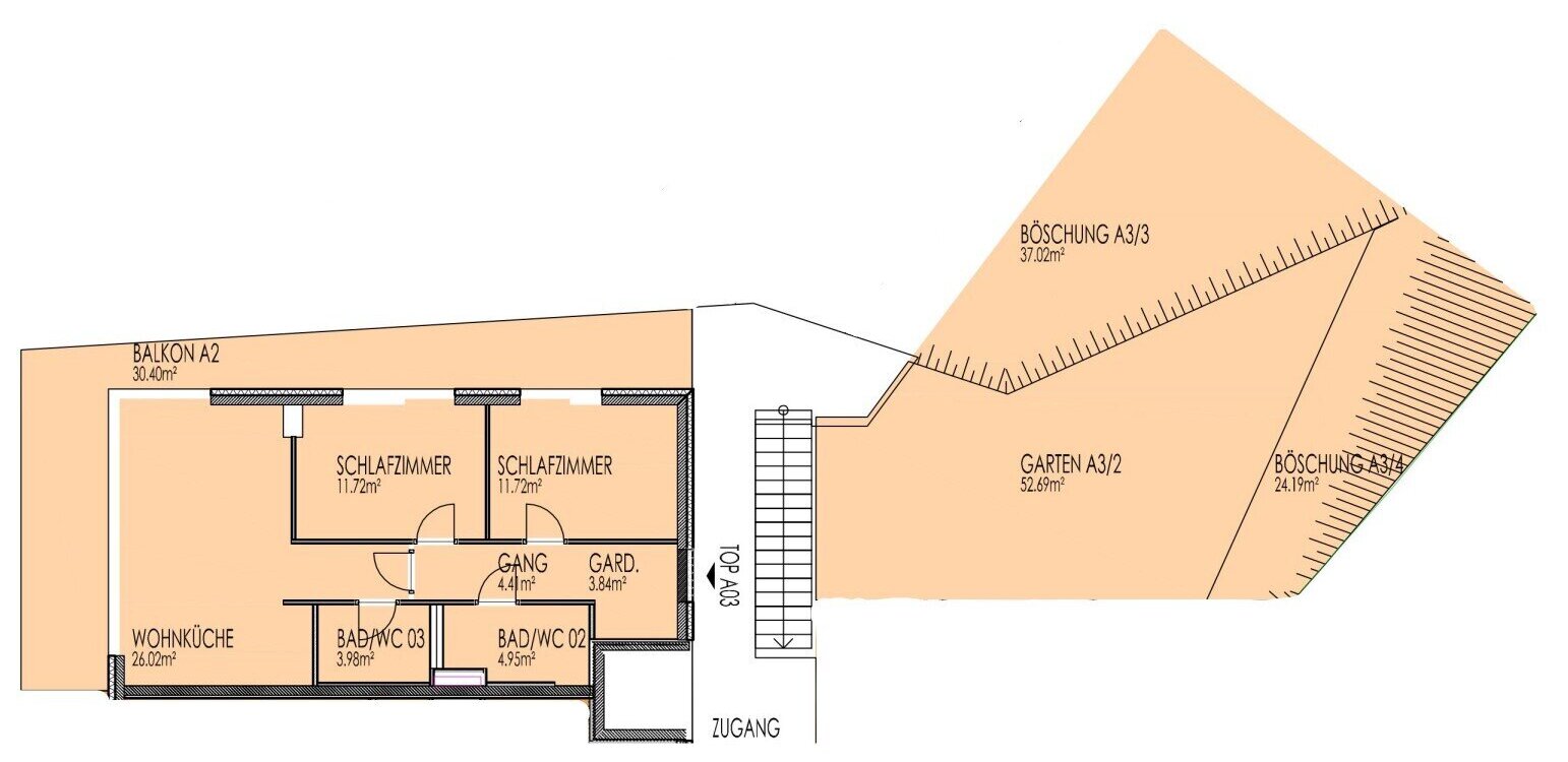
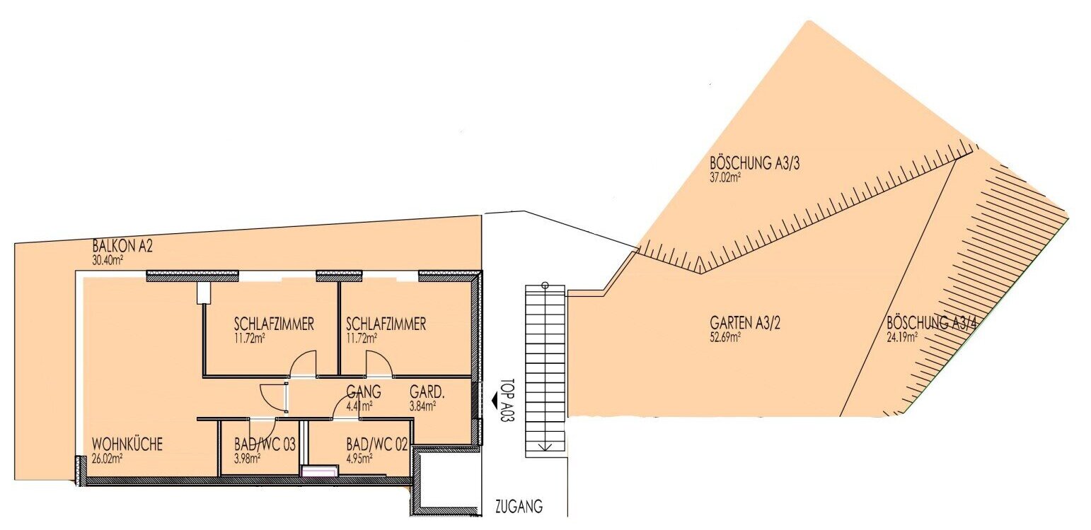
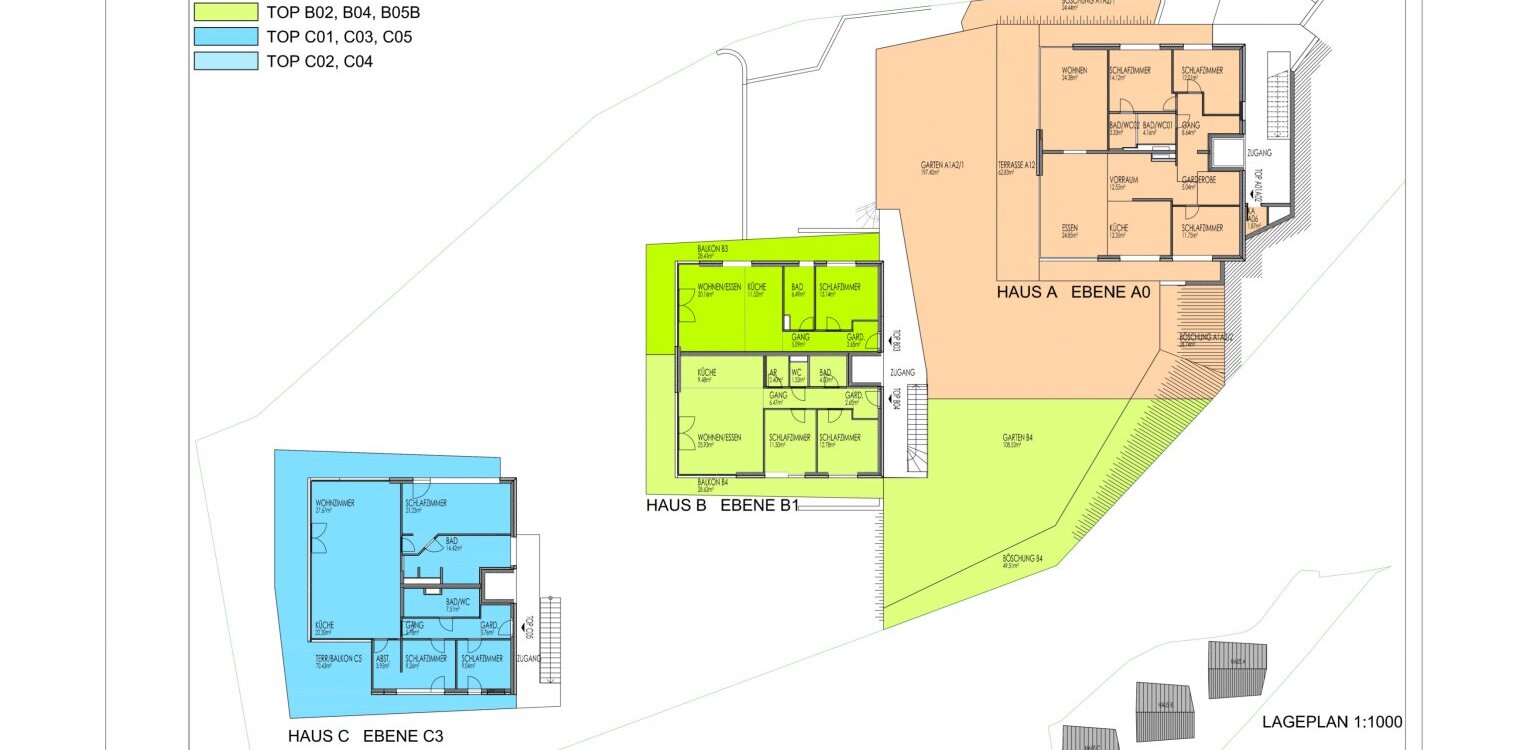
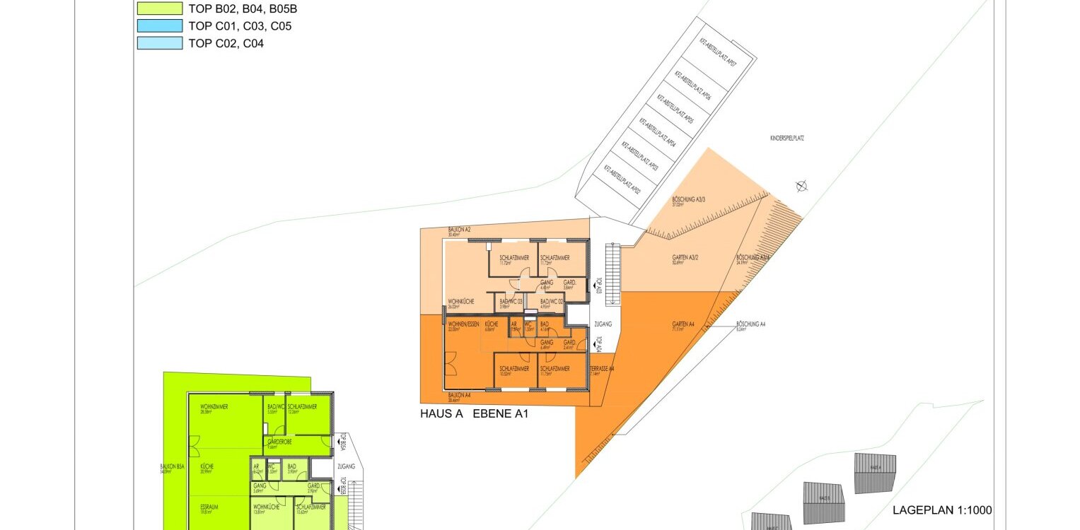
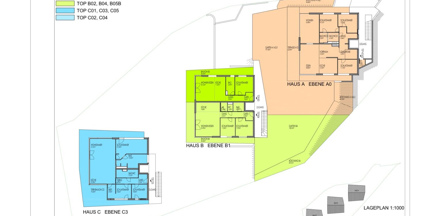
Endlich Platz für eine Familie! Hier ergibt sich die seltene Gelegenheit von einem Haus in Haus Konzept - es wurden in der Bauphase 3 Wohnungen in einem exklusiven Wohnprojekt zusammengelegt. Somit ergibt sich auch der Vorteil von einer großzügigen Terrasse, 2 Gärten, einem Rundumbalkon mit herrlichem Inntalblick, 5 Tiefgaragenplätze, 3 Kellerabteile und einem Lagerraum direkt beim Wohnungseingang.

Die Wohnung selber ist im Erdgeschoß aufgeteilt in einen großzügigen, loftartigen Wohn-/Küchen-/Essbereich von dem man auf die Terrasse und den anschließenden Garten gelangt, mit herrlichen Blick auf das Inntal und die Nordkette. Auf dieser Ebene befindet sich auch ein eigenständiger Wohnungsbereich, mit Badezimmer für z.B. Besuch, Au-Pair, etc. und ein Kinderzimmer oder Arbeitszimmer.

Im Obergeschoß sind weitere 2 Kinderzimmer mit Bad, sowie ein großes Elternschlafzimmer mit direkt angrenzendem Badezimmer. Alle Zimmer haben Zugang auf den "Rundum"-Balkon.

Es gibt einen Garten Richtung Süden, einen weiteren Richtung Norden. 

Am besten einfach selber anschauen und einen Eindruck vor Ort gewinnen!

Die Immobilie ist zur Zeit befristet vermietet!


Infrastruktur / Entfernungen

Gesundheit
Arzt <1.500m
Apotheke <1.000m
Klinik <3.000m
Krankenhaus <5.000m

Kinder & Schulen
Schule <500m
Kindergarten <500m
Universität <3.000m
Höhere Schule <1.000m

Nahversorgung
Supermarkt <500m
Bäckerei <500m
Einkaufszentrum <2.500m

Sonstige
Bank <500m
Geldautomat <1.500m
Post <2.500m
Polizei <1.500m

Verkehr
Bus <500m
Straßenbahn <1.500m
Autobahnanschluss <1.500m
Bahnhof <3.500m
Flughafen <8.000m

Angaben Entfernung Luftlinie / Quelle: OpenStreetMap