Exklusiv Wohnen "Am Park" in Aldrans mit herrlichem Blick übers Inntal

Aldrans ist bekannt für seine hervorragende Lebensqualität und die Nähe zu Innsbruck! Die Lage dieser Neubau-Häuser ist darüber hinaus einzigartig - zentral im Dorf und dennoch in absoluter Ruhe- und Aussichtslage, direkt angrenzend an einen privaten Park und nur über einen Privatweg erreichbar - besser geht`s nicht! Nur wenige Schritte entfernt finden Sie: Lebensmittelgeschäfte, Arzt, Apotheke, Schule und Kindergarten, Bank, Gasthäuser, etc.! Dank der guten Anbindung an den öffentlichen Nahverkehr sind Sie flexibel und mobil!
Florina badge

Alle Daten im Überblick

Kaufpreis: auf Anfrage
Einmalkosten
2% des Kaufpreises zzgl. 20% USt.
Baujahr
2025
Verfügbar
Ende 2026
Sign Icon Kaufobjekt
Haus Icon 6 Zimmer
Anfahrt Icon
6071 Aldrans
groesse Icon 154.8 m2

beschreibung

"Wohnen Am Park in Aldrans" sind vier Neubau-Villen in unverwechselbarer Architektur und exklusiver Lage - angrenzend an einen privaten Park mit Baumjuwel und unverbaubarem Blick übers Inntal für lange Sonnenstunden!

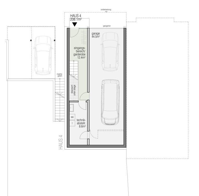
Villa 4 - ist die westlichste Villa, hat den großzügigsten Garten mit ca. 238,6 m² und den weitesten Abstand zum nächsten Doppelhaus - somit am meisten Sonnenstunden und viel Privatsphäre!

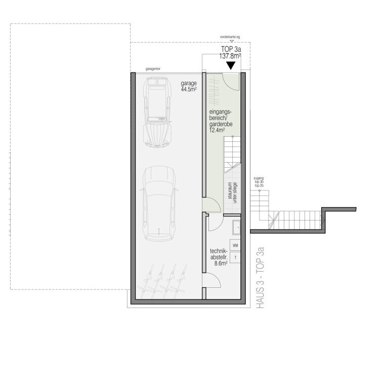
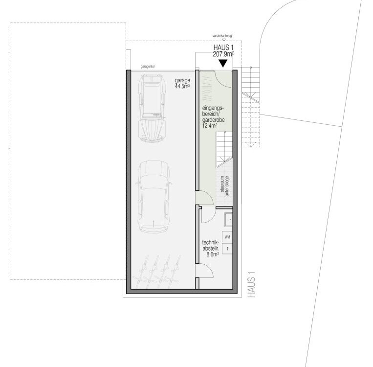
Im Untergeschoss (ebenerdiger Zugang) befindet sich neben dem Eingangsbereich ein großzügiger Garderobenbereich, die Garage (mit Platz für 2 PKW und Fahrräder), sowie ein Technik- und Hauswirtschaftsraum – mit Anschlussmöglichkeiten für Waschmaschine und Wäschetrockner.

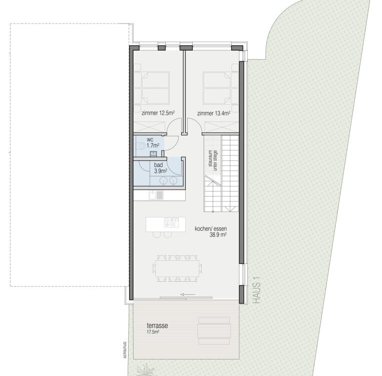
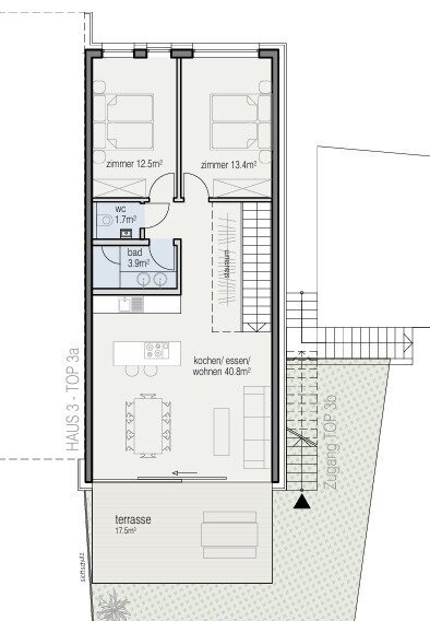
Wenn man die einläufige Treppe ins Erdgeschoß hinauf geht, hat man sofort den direkten Blickbezug zum Koch-/Essbereich, welcher in Richtung Süden, in die vorgelagerte, überdachte Terrasse, sowie den großzügigen Garten (ca. 239 m²) übergeht. Zwei ruhige Schlafzimmer mit nordwestlicher Ausrichtung, sowie ein Bad und ein Gäste-WC komplettieren diese Ebene.

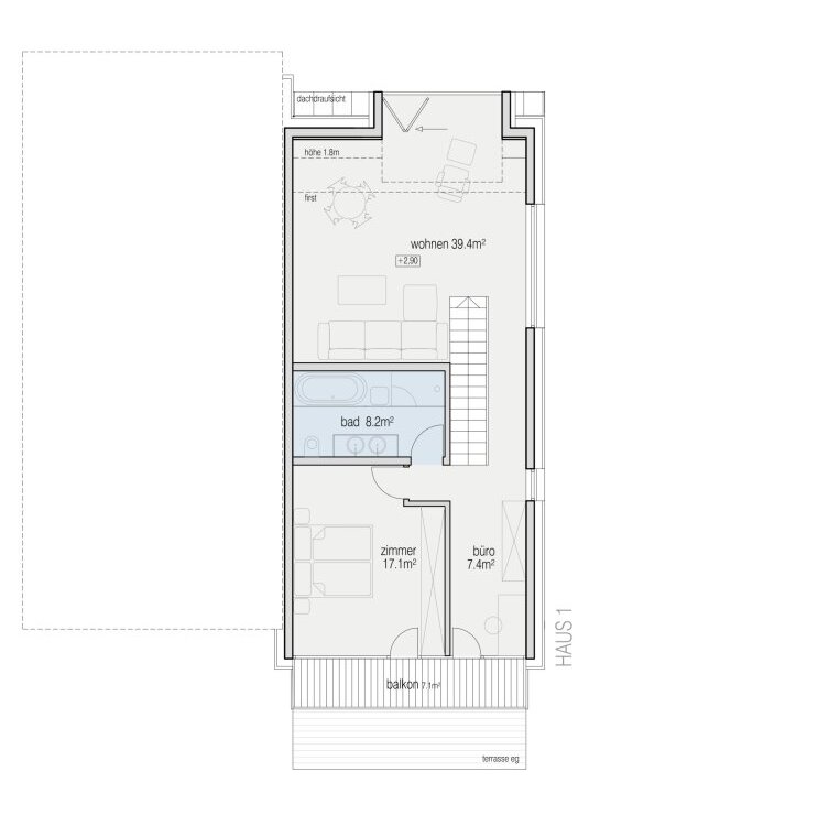
Im Obergeschoß befinden sich zwei weitere helle Schlafzimmer mit großzügigem Balkon Richtung Süd-Osten, ein angrenzendes, elegantes Badezimmer mit Badewanne, Dusche und WC. Phantastisch ist der 3,5m hohe Wohn-, Koch- und Essbereich mit herrlich großer Fensterfläche und Blick über Innsbruck und auf die Nordkette! Das Fenster-Element ist komplett aufklappbar, die überbreite Fensterbank mit Sitzgelegenheit garantiert gemütliche Weitblickstunden!

Die Häuser verfügen über eine Garage sowie einen zusätzlichen, überdachten Stellplatz. Der private Gartenbereich liegt sonnenseitig, im Süden und bietet einen unverwechselbaren Schlossblick, sowie auf den Patscherkofel.

Baustart ist im Sommer 2025 erfolgt, geplante Fertigstellung Ende 2026. Je nach Zeitpunkt Ihrer Kaufentscheidung sind die Grundrisse noch flexibel!

Konstruktion und Material

Die Materialwahl folgt einem konsequent nachhaltigen Baukonzept. Im Mittelpunkt steht der Einsatz natürlicher, ökologischer Baustoffe - es handelt sich um ein Niedrigenergiehaus!

In allen Wohnbereichen wird ein hochwertiger Eichenholzfußboden mit integrierter Fußbodenheizung verlegt. Ein durchdachtes Beleuchtungskonzept ist derzeit in Ausarbeitung und rundet die hochwertige Ausstattung ab.

 

 


Infrastruktur / Entfernungen

Gesundheit
Arzt <1.500m
Apotheke <1.000m
Klinik <3.000m
Krankenhaus <4.500m

Kinder & Schulen
Schule <500m
Kindergarten <500m
Universität <3.000m
Höhere Schule <1.000m

Nahversorgung
Supermarkt <500m
Bäckerei <500m
Einkaufszentrum <2.000m

Sonstige
Bank <500m
Geldautomat <1.500m
Post <2.000m
Polizei <1.500m

Verkehr
Bus <500m
Straßenbahn <1.500m
Autobahnanschluss <1.500m
Bahnhof <3.500m
Flughafen <8.000m

Angaben Entfernung Luftlinie / Quelle: OpenStreetMap