Familientraum in Mühlau: gemütliche 3-4 Zimmer-Gartenwohnung

Diese charmante Gartenwohnung im beliebten Stadtteil Mühlau bietet nicht nur ein gemütliches Zuhause, sondern auch eine ideale Lage für Familien und Berufstätige. In unmittelbarer Nähe finden Sie alles, was das Herz begehrt: Apotheke, Schulen und Kindergärten, Supermarkt, etc. sind fußläufig erreichbar. Zudem garantieren Bus, Straßenbahn, der Innfahrradweg die beste Anbindung. Hier wohnen Sie mitten im Leben!
Florina badge

Alle Daten im Überblick

Kaufpreis: auf Anfrage
Nebenkosten:
404,06 €
Einmalkosten
3% des Kaufpreises zzgl. 20% USt.
Baujahr
1994
Verfügbar
Juli 2026
Sign Icon Kaufobjekt
Haus Icon 3 Zimmer
Anfahrt Icon
6020 Innsbruck
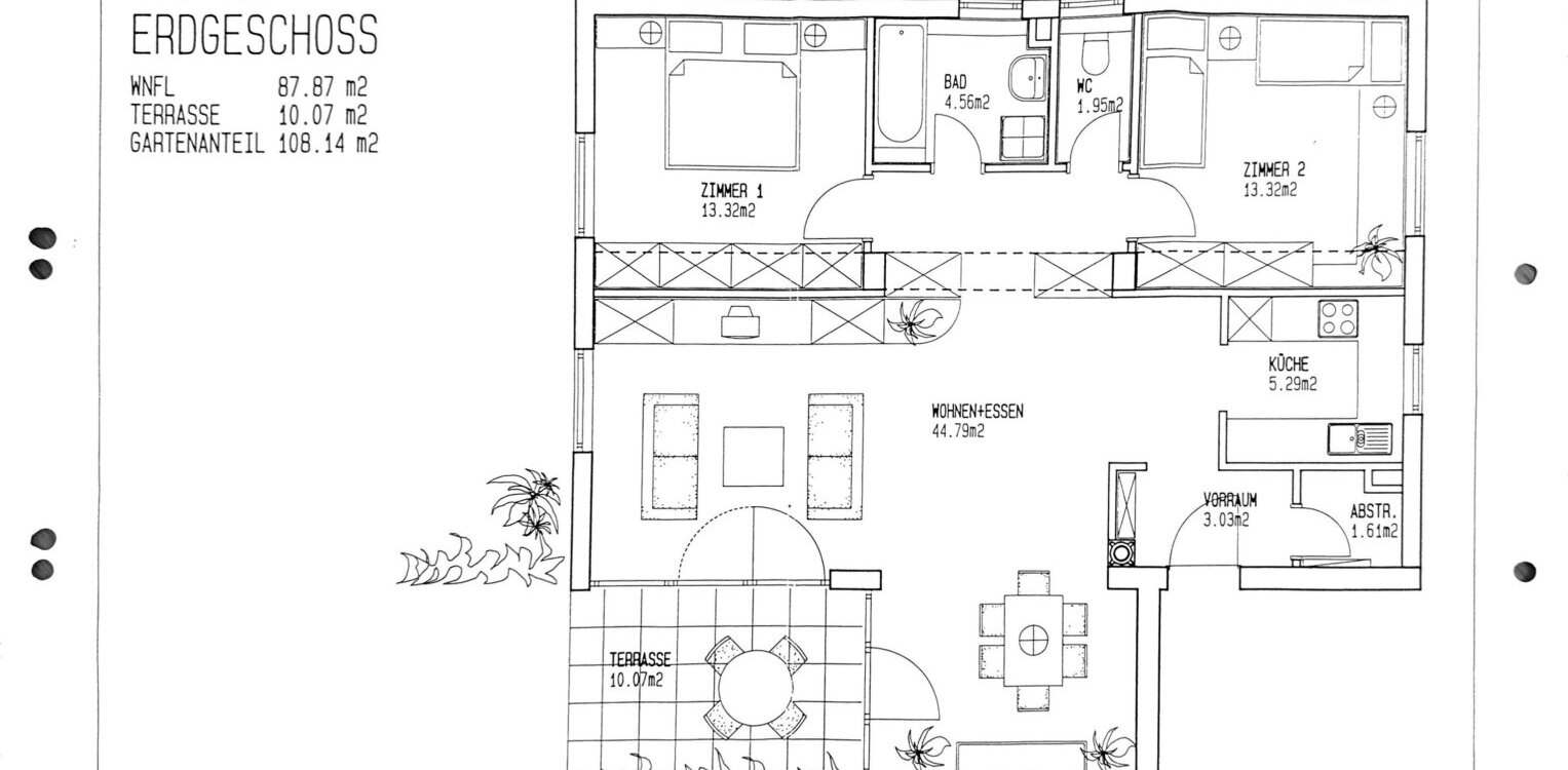
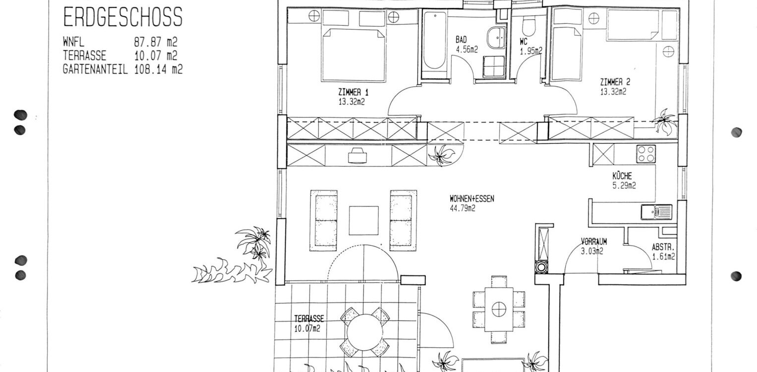
groesse Icon 87.87 m2

beschreibung

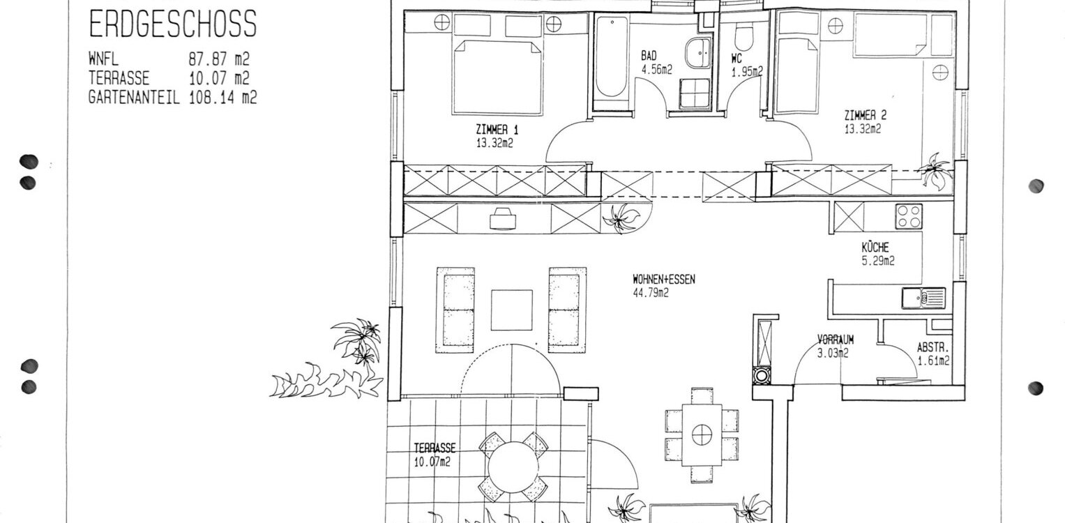
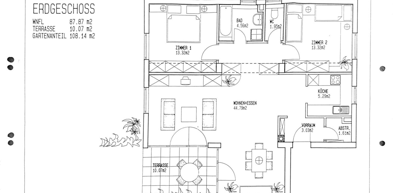
Willkommen in Ihrem neuen Zuhause in Mühlau – dies ist eine äußerst gemütliche Gartenwohnung, mit 2 Schlafzimmern und einem großzügigen Wohn-/Essbereich, der auch zu einem weiteren Schlafzimmer abgetrennt werden kann!

Mit einer Fläche von knapp 88 m² und drei lichtdurchfluteten Zimmern ist diese Wohnung ideal für Familien oder Paare, die einen ruhigen Rückzugsort und dennoch die Nähe zur Stadt schätzen.

Die gepflegte Gartenwohnung im Erdgeschoss überzeugt durch die perfekte Raumaufteilung, die Ausrichtung nach Süd-West, sowie die traumhafte Außenfläche: Eine überdachte Süd-Terrasse, die in den ruhigen, westseitigen Garten übergeht und perfekt für Kinder/Gartenliebhaber etc. geeignet ist. Der Blick auf die Nordkette ist ein Highlight!

Ein weiteres Plus ist der Garagen-Abstellplatz, sowie ein Kellerabteil und ein separater Lagerraum.

Die Lage dieser Gartenwohnung könnte nicht besser sein - perfekte Anbindung an das öffentliche Verkehrsnetz und eine hervorragende Infrastruktur in der Umgebung: Schule, Kindergarten, Apotheke, Lebensmittelgeschäft etc. befinden sich in unmittelbarer Nähe!

Am besten selber einen Eindruck verschaffen und einen Besichtigungstermin vereinbaren!

 


Infrastruktur / Entfernungen

Gesundheit
Arzt <500m
Apotheke <500m
Klinik <1.500m
Krankenhaus <1.000m

Kinder & Schulen
Schule <500m
Kindergarten <500m
Universität <1.500m
Höhere Schule <1.000m

Nahversorgung
Supermarkt <1.000m
Bäckerei <1.000m
Einkaufszentrum <1.000m

Sonstige
Bank <1.000m
Geldautomat <1.000m
Post <1.500m
Polizei <1.000m

Verkehr
Bus <500m
Straßenbahn <1.000m
Bahnhof <1.000m
Autobahnanschluss <3.500m
Flughafen <6.000m

Angaben Entfernung Luftlinie / Quelle: OpenStreetMap