Penthouse der Extraklasse! - 2stöckig, hell, 2 Terrassen und endlich Platz für Familien

Die Lage könnte besser nicht sein! Zentral mitten in Wattens und dennoch abseits des Trubels! Wattens zeichnet sich besonders durch die perfekte Infrastruktur aus: Kindergarten, Schulen, Ärzte, zahlreiche Einkaufsmöglichkeiten, sowie Cafés und top Restaurants befinden sich im Zentrum. Für Kinder gibt es zahlreiche Sportstätten, Sportvereine, Spielplätze, ein Freibad, eine Kletterhalle, ein Eislaufplatz u.v.m.! Die Anbindung an die Autobahn, sowie an die öffentlichen Verkehrsmittel ist optimal!
Florina badge

Alle Daten im Überblick

Kaufpreis: auf Anfrage
Verfügbar
ab sofort
Sign Icon Kaufobjekt
Haus Icon 4 Zimmer
Anfahrt Icon
6112 Wattens
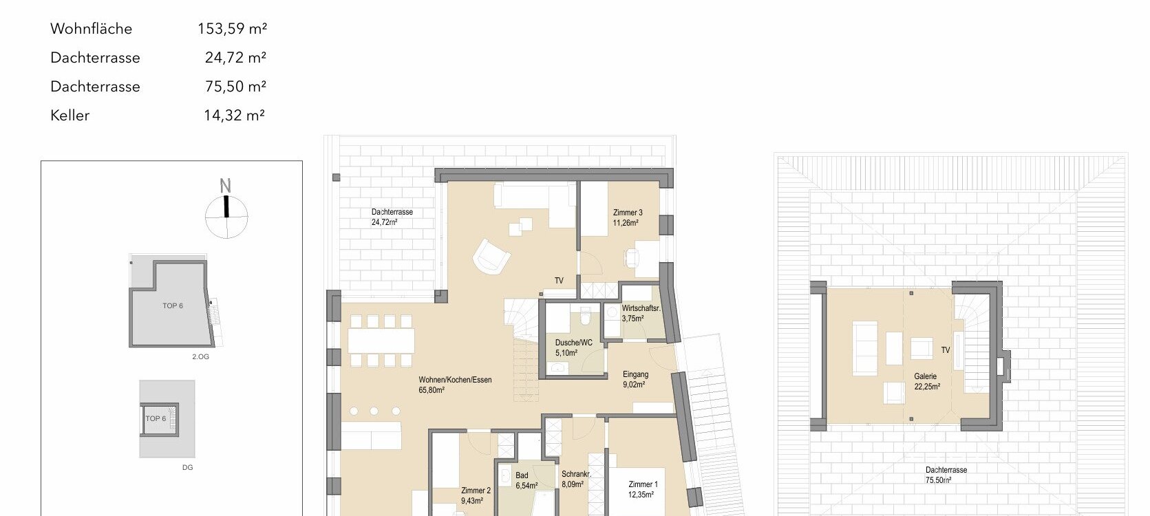
groesse Icon 153.59 m2

beschreibung

Herrlich luxuriöse & gemütliche Penthouse-Wohnung über 2 Stockwerke und 2 Terrassen mit traumhaften Ausblicken und langen Sonnenstunden! Alles da, alles nah - das sind die Vorteile des kompakten "Ambiente" Wohnhauses in zentraler Best-Lage von Wattens!

Das neu-errichtete Wohnhaus verfügt über 6 Wohneinheiten, jede davon ist modern, elegant und äußerst hochwertig ausgestattet. 

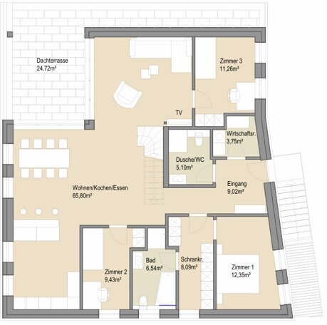
Die letzte noch verfügbare Wohneinheit, die Penthouse-Wohnung unterteilt sich im 2. Obergeschoß in einen wirklich großzügigen Wohn-Kochbereich mit ca. 65,68 m² und herrlichen Ausblicken, sowie der Möglichkeit auf der direkt angrenzenden Terrasse zu essen, zu grillen etc. Auf dieser Ebene gibt es 3 Schlafzimmer, geschickt von einander räumlich getrennt, sowie 2 Badezimmer und einen begehbaren Schrankraum. Der Eingangsbereich ist großzügig gestaltet und bietet viel Stauraum. Sehr praktikabel der Wirtschaftsraum mit einer Größe von ca. 3,75 m².

Im Obergeschoß nochmal ein Highlight - der Wohnraum, der als Atelier, Leseraum etc. genutzt werden kann und die traumhafte Dachterrasse, in 3 Himmelsrichtungen und ca. 75m² Fläche - da sind die Sonnenstunden lang und die Aussicht grandios!

Für feine Behaglichkeit sorgen Echtholz-Parkettböden und Fußbodenheizung. Hochwertige Sanitärobjekte und moderne Fliesenkonzepte bestimmen den Standard der eleganten Bäder.  Überhohe Räume und durchdachte Lichtkonzepte mit direkter und indirekter Beleuchtung verleihen allen Wohnungen Eleganz und Großzügigkeit. Modern, warm inszenierte Wandgestaltungen mit Spachteltechniken geben den großzügigen Räumen Behaglichkeit (können nach Kundenwunsch aber auch farblich adaptiert werden!).

Von den Zugangsebenen erreichen Sie über die beiden Treppenhäuser direkt die Keller- und Lagerräume. Hier sorgen auch großzügige Abstellbereiche für Kinderwägen und Sportgeräte, sowie der Waschplatz und E-Bike-Stationen für alle Einheiten für zusätzlichen Komfort.

Die Wärmeversorgung erfolgt dabei über Fernwärme, die 3-fach-verglasten Fenster (mit elektr. Außen-Raffstores) sind von Internorm. 

Im Erdgeschoß befinden sich die Postfächer, der abgeschlossene Müllbereich und der große Autoabstellplatz für das Penthouse. Wer bereits einen „Stromer“ fährt, kann bequem die bereits installierte Wallbox zum Laden nutzen. Im Erdgeschoß befinden sich auch die Stellplätze für einspurige KFZ und Fahrräder.

Die gesamte Wohnungstechnik (Heizung, Beleuchtung, Beschattung, Zugang) wird durch ein BUS-System von komfortabel gesteuert. Dieses komfortable Steuerungssystem trägt u.a. dazu bei, den Energieverbrauch zu reduzieren, indem es die Beleuchtung, Beschattung und Heizung automatisch reguliert und an die Bedürfnisse der Nutzer und des Gebäudes anpasst. Natürlich haben Sie damit auch unterwegs alles im Griff und können jederzeit auf alle Daten zugreifen - modernes Wohnen mit gehobenem Wohnkomfort in Bestlage!

Einfach selber anschauen - es lohnt sich!

Hinweis gemäß Energieausweisvorlagegesetz: Ein Energieausweis wurde vom Eigentümer bzw. Verkäufer, nach unserer Aufklärung über die generell geltende Vorlagepflicht, sowie Aufforderung zu seiner Erstellung noch nicht vorgelegt. Daher gilt zumindest eine dem Alter und der Art des Gebäudes entsprechende Gesamtenergieeffizienz als vereinbart. Wir übernehmen keinerlei Gewähr oder Haftung für die tatsächliche Energieeffizienz der angebotenen Immobilie.


Infrastruktur / Entfernungen

Gesundheit
Arzt <500m
Apotheke <500m
Klinik <6.500m
Krankenhaus <6.000m

Kinder & Schulen
Schule <500m
Kindergarten <500m
Universität <6.000m

Nahversorgung
Supermarkt <500m
Bäckerei <500m

Sonstige
Bank <500m
Geldautomat <500m
Post <500m
Polizei <500m

Verkehr
Bus <500m
Autobahnanschluss <1.500m
Bahnhof <1.500m

Angaben Entfernung Luftlinie / Quelle: OpenStreetMap