Sonnige 4-Zimmer-Dachgeschoßwohnung mit tollen Ausblick und 2 Stellplätzen

Die Wohnung befindet sich in einem 3-Parteien-Wohnhaus in sonniger Lage, gleich neben dem beliebten Kletterareal der Engelswand und der Wallfahrts-Kirche "Maria Schnee". Alle top Hot-Spots des Ötztales, alle sportlichen Aktivitäten, der Fahrradweg etc. liegen in unmittelbarer Umgebung. Der kleine Weiler Östen (Lehn Platzl) bei Umhausen ist ganzjährig sonnig und trotz der zentralen Lage verkehrsberuhigt gelegen.
Florina badge

Alle Daten im Überblick

Kaufpreis: 285.000 €
Nebenkosten:
130,00 €
Einmalkosten
3% des Kaufpreises zzgl. 20% USt.
Baujahr
1980
Verfügbar
nach Vereinbarubg
Sign Icon Kaufobjekt
Haus Icon 4 Zimmer
Anfahrt Icon
6441 Umhausen
groesse Icon 80 m2

beschreibung

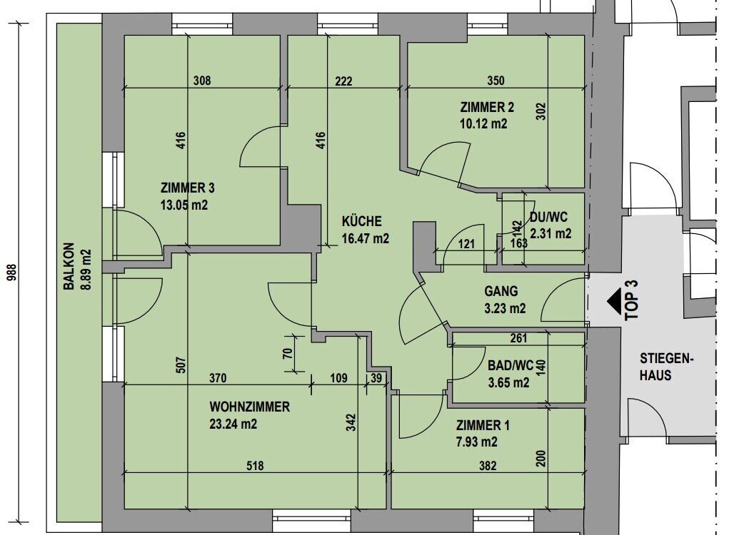
Die gemütliche, sonnige 4-Zimmer Wohnung befindet sich im Dachgeschoß eines 3-Parteien Wohnhauses.

Die ca. 80 m² große Wohnung unterteilt sich in einen geräumigen Vorraum, in 3 Schlafzimmer, einen geräumigen Wohn-/Essraum Richtung Süden und Zugang auf den Holzbalkon.

Die Küche ist offen gestaltet.
Das Badezimmer verfügt über eine Badewanne und es gibt ein separates WC mit Waschmaschinen-Anschluss. Man hat von allen Zimmern einen herrlichen Blick auf die umliegende Bergwelt und die Felder und Wiesen.

+ 2 Autoabstellplätze im Freien und ein großer Kellerraum.

 

Ausstattung & Highlights:

  • Inklusive Einbauküche mit E-Geräten
  • Balkon: Südbalkon mit Alpenpanorama.
  • Parken: 2 Autoabstellplätze im Freien.
  • Stauraum: Ein sehr großes Kellerabteil bietet zusätzlichen Platz.
  • 2 Badezimmer und separates WC mit WM-Anschluss.
  • Lage: Unmittelbare Nähe zu Tourismus- & Sport-Hotspots Tirols.
  • Infrastruktur: Alle Einrichtungen des täglichen Bedarfs (Einkaufsmöglichkeiten, Ärzte, Restaurants) sind optimal und schnell erreichbar.
  • Sport & Freizeit: Die vielfältigen Sport- und Freizeitaktivitäten, die Tirol zu bieten hat – ob Skifahren, Wandern, Mountainbiken oder Golfen – beginnen unmittelbar vor der Haustüre. Die Hotspots der Region sind nur wenige Fahrminuten entfernt.
  • Nur 5 Minuten Fußweg zum Skibus nach Ötz oder nach Sölden.
  • geringe Betriebskosten

 

Zögern Sie nicht, mich für weitere Details oder einen Besichtigungstermin zu kontaktieren.

Senden Sie mir bitte eine Anfrage mit Ihren Kontaktdaten oder rufen Sie mich direkt an.

 

Ich bin telefonisch oder per E-Mail erreichbar und freue mich von Ihnen zu hören!

Immobilienmakler Reinhard Wechselberger

 


Infrastruktur / Entfernungen

Gesundheit
Arzt <2.500m
Apotheke <5.500m

Kinder & Schulen
Schule <2.000m
Kindergarten <2.000m

Nahversorgung
Supermarkt <1.500m
Bäckerei <2.500m

Sonstige
Bank <3.000m
Geldautomat <5.500m
Polizei <6.000m
Post <2.500m

Verkehr
Bus <500m
Bahnhof <10.000m

Angaben Entfernung Luftlinie / Quelle: OpenStreetMap